Servizi
Contatti
Agenzie
Primalux Alzate Brianza
Primalux Bergamo
Primalux Cantù
Primalux Cermenate
Primalux Cesano Maderno
Primalux Fino Mornasco
Primalux Giussano
Primalux Limbiate
Primalux Lissone
Primalux Lurate Caccivio
Primalux Mariano Comense
Primalux Novedrate
Primalux Olgiate comasco
188.000 €
4 locali
124 m²
2 bagni
4 o più locali in vendita
Limbiate,via monte bianco ,
Facebook
X (ex Twitter)
Linkedin
WhatsApp
Home
Vendite
Stupendo quadrilocale di 124 mq!!
Foto
Video
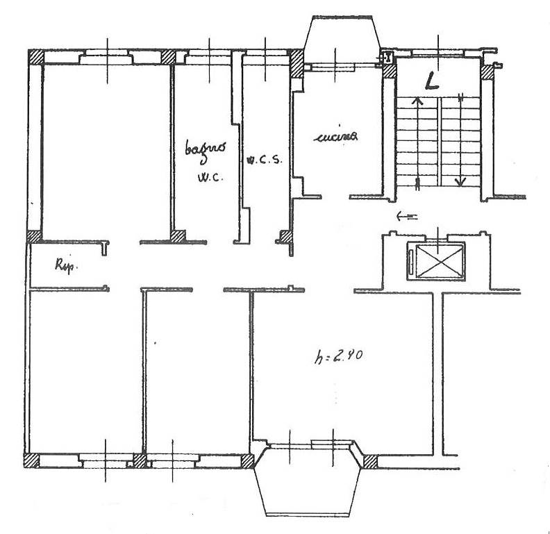
Planimetria
Mappa
+27
4 o più locali in vendita
Limbiate, via monte bianco ,
Caratteristiche principali
Codice
V001047
Città
Limbiate
(Mombello)
Categoria
4 o più locali
Locali
4
Camere
3
Bagni
2
Mq
124
Balconi
2
Mq Balcone
6
Piano
4
Anno
1964
Classe energetica
G
201,88
Stato Immobile
Ottimo
Grado
Signorile
Lati Liberi
2
Arredi
Non Arredato
Tipo Soggiorno
Salone
Tipo Cucina
Abitabile
Riscaldamento
Centralizzato
Tipo Riscaldam.
Caldaia
Tipo Impianto
Radiatori
Fonte Energetica
Metano
Infissi
PVC Doppio Vetro
Serramenti
Ottimo
Mostra tutto
Costi
Prezzo
188.000 €
Spese condominiali
2.300 € / anno
Calcola mutuo
Descrizione
Stupendo quadrilocale di 124 mq!!
Limbiate, in zona Mombello, proponiamo in vendita stupendo quadrilocale di circa 124 mq, posto al quarto ed ultimo piano di una palazzina di soli quattro piani.
L'appartamento è così composto: ingresso, ampio soggiorno con balcone, cucina abitabile con secondo balcone, tre spaziose camere da letto matrimoniali, doppi servizi e ripostiglio.
A completare la soluzione la cantina.
Immobile con serramenti rifatti e bagni nuovi !!
Nel raggio di 800 metri troviamo ubicati i principali servizi: scuole, comune, negozi e mezzi di trasporto. Se questo immobile non dovesse soddisfare le sue esigenze ci contatti all'indirizzo Contatta l'Agenzia con il servizio Invia Richiesta indicandoci le caratteristiche specifiche della soluzione che sta cercando, così che possa essere ricontatto da un nostro agente che le proporrà le offerte migliori per la sua richiesta. I nostri consulenti finanziari sono sempre disponibili nei nostri uffici per colloqui di mutuo completamente gratuiti e senza impegno.
Mostra tutto
Accessori
Ascensore
Cancello Elettrico
Doppi Vetri
Porta Blindata
Ripostiglio
Mappa
Video
Your browser does not support the video tag.
Richiedi un
Appuntamento
Fissa un appuntamento
1. Scegli la data e l'orario per la tua visita.
Data *
Ora *
Note
2. Inserisci i tuoi dati personali.
Cognome *
Nome *
Email *
Recapito *
(*) Autorizzo il trattamento dei miei dati personali, Regolamento UE n. 679/2016 -
Privacy Policy
(*) Sono consapevole che l'appuntamento non è ancora confermato e attendo conferma definitiva da parte dell'agenzia immobiliare.
Autorizzo al trattamento dei dati per finalità di marketing, attività promozionali, offerte commerciali ed indagini di mercato.
Invia
Immobile proposto da Primalux
Affiliato: Primalux Limbiate
Via Fratelli Cervi, 5
20812 Limbiate MB
02 89774706
329 6630091
limbiate@primalux.net
Chiama
Richiedi informazioni
Autorizzo il trattamento dei miei dati personali in base al Regolamento UE n. 679/2016 -
Privacy Policy
Invia
Richiedi info mutuo
BluOrange
Lavora con noi
Lascia la tua richiesta
Proponi la tua casa
Mantieni impostazioni di default X
Uso dei cookies
Questo sito fa uso di cookies. I nostri cookies (propri) e quelli dei nostri Partners (cookies di terzi) servono per poterti offrire un'esperienza unica con noi. Per questo motivo, insieme ai nostri partners, raccogliamo e processiamo informazioni non sensibili (come l'identificatore del tuo dispositivo o le pagine che visiti).
In qualsiasi momento potrai eliminare, modificare o verificare le informazioni che condividi in
Cookie preference
o nella nostra
Cookie Policy
e
Privacy Policy
.
Necessari
Funzionali
Profilazione
Analitici
Accetta tutti
Rifiuta tutti
Accetta selezionati
Cookie preference