Servizi
Contatti
Agenzie
Primalux Alzate Brianza
Primalux Bergamo
Primalux Cantù
Primalux Cermenate
Primalux Cesano Maderno
Primalux Fino Mornasco
Primalux Giussano
Primalux Limbiate
Primalux Lissone
Primalux Lurate Caccivio
Primalux Mariano Comense
Primalux Novedrate
Primalux Olgiate comasco
139.000 €
2 locali
62 m²
11 bagni
2 locali in vendita
Limbiate,via catalani
Facebook
X (ex Twitter)
Linkedin
WhatsApp
Home
Vendite
Bilocale con terrazzo, SENZA SPESE !!
Foto
Video
Planimetria
Mappa
+14
2 locali in vendita
Limbiate, via catalani
Caratteristiche principali
Codice
V001035
Città
Limbiate
Categoria
2 locali
Locali
2
Camere
1
Bagni
11
Mq
62
Terrazzi
1
mq Terrazzo
20
Piano
1
Anno
1985
Classe energetica
G
197,88
Stato Immobile
Ristrutturato
Grado
Signorile
Orientamento
Est Sud Ovest
Lati Liberi
3
Arredi
Non Arredato
Tipo Soggiorno
Soggiorno
Tipo Cucina
Abitabile
Riscaldamento
Autonomo
Tipo Riscaldam.
Caldaia
Tipo Impianto
Radiatori
Fonte Energetica
Metano
Acqua Calda
Autonoma
Raffrescamento
No
Infissi
Legno Doppio Vetro
Serramenti
Buono
Persiana
Tapparella PVC
Mostra tutto
Costi
Prezzo
139.000 €
Spese condominiali
0 € / anno
Calcola mutuo
Descrizione
Bilocale con terrazzo, SENZA SPESE !!
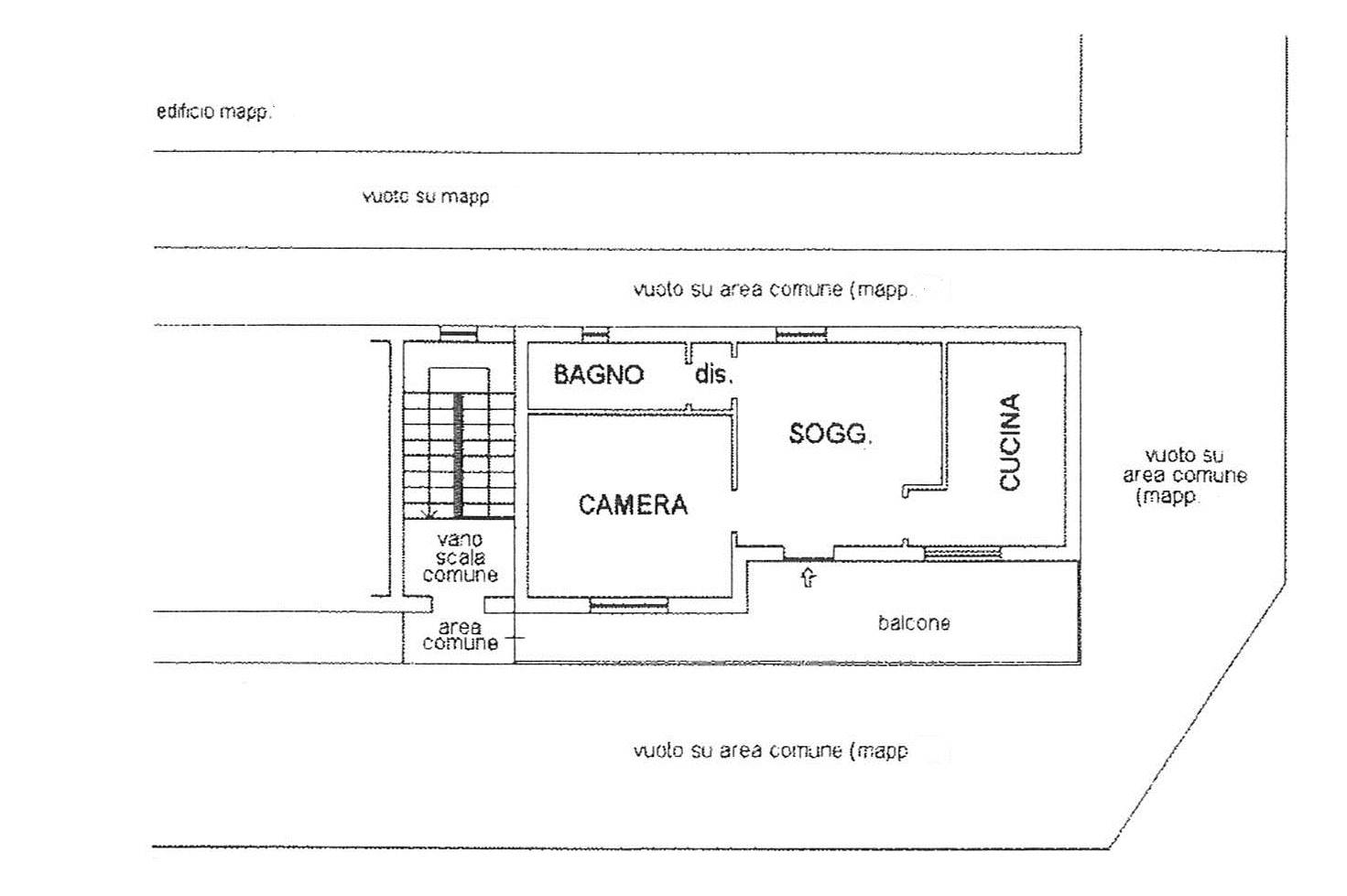
Limbiate, in zona villaggio del Sole, proponiamo in vendita stupendo bilocale di circa 62 mq, posto al primo piano di una piccola villetta quadrifamiliare.
L'appartamento è così composto: ingresso nell'ampio soggiorno, cucina abitabile, spaziosa camera da letto matrimoniale, bagno e disimpegno.
A completare la soluzione l'ampio terrazzo coperto di circa 20 mq e la cantina di 10 mq.
Grazie alla buona metratura e all'ottima disposizione, è possibile ricavare un trilocale, trasformando la cucina in cameretta.
LIBERO SUBITO !!
Nel raggio di 500 metri troviamo ubicati i principali servizi: scuole, comune, negozi e mezzi di trasporto. Se questo immobile non dovesse soddisfare le sue esigenze ci contatti all'indirizzo Contatta l'Agenzia con il servizio Invia Richiesta indicandoci le caratteristiche specifiche della soluzione che sta cercando, così che possa essere ricontatto da un nostro agente che le proporrà le offerte migliori per la sua richiesta. I nostri consulenti finanziari sono sempre disponibili nei nostri uffici per colloqui di mutuo completamente gratuiti e senza impegno.
Mostra tutto
Accessori
Cancello Elettrico
Doppi Vetri
Porta Blindata
Mappa
Video
Your browser does not support the video tag.
Richiedi un
Appuntamento
Fissa un appuntamento
1. Scegli la data e l'orario per la tua visita.
Data *
Ora *
Note
2. Inserisci i tuoi dati personali.
Cognome *
Nome *
Email *
Recapito *
(*) Autorizzo il trattamento dei miei dati personali, Regolamento UE n. 679/2016 -
Privacy Policy
(*) Sono consapevole che l'appuntamento non è ancora confermato e attendo conferma definitiva da parte dell'agenzia immobiliare.
Autorizzo al trattamento dei dati per finalità di marketing, attività promozionali, offerte commerciali ed indagini di mercato.
Invia
Immobile proposto da Primalux
Affiliato: Primalux Limbiate
Via Fratelli Cervi, 5
20812 Limbiate MB
02 89774706
329 6630091
limbiate@primalux.net
Chiama
Richiedi informazioni
Autorizzo il trattamento dei miei dati personali in base al Regolamento UE n. 679/2016 -
Privacy Policy
Invia
Richiedi info mutuo
BluOrange
Lavora con noi
Lascia la tua richiesta
Proponi la tua casa
Mantieni impostazioni di default X
Uso dei cookies
Questo sito fa uso di cookies. I nostri cookies (propri) e quelli dei nostri Partners (cookies di terzi) servono per poterti offrire un'esperienza unica con noi. Per questo motivo, insieme ai nostri partners, raccogliamo e processiamo informazioni non sensibili (come l'identificatore del tuo dispositivo o le pagine che visiti).
In qualsiasi momento potrai eliminare, modificare o verificare le informazioni che condividi in
Cookie preference
o nella nostra
Cookie Policy
e
Privacy Policy
.
Necessari
Funzionali
Profilazione
Analitici
Accetta tutti
Rifiuta tutti
Accetta selezionati
Cookie preference